泓鑒熱線:0551-63732980
本案是一套很小的適用戶型,房產證上是60平米,實際使用面積是47平米(還是含陽臺的)。業主想要改造成三個房間,其中一個房間希望可以解決偶爾有客人留宿的問題,這么小的面積,不知設計師要如何改造呢?一起來看看吧!

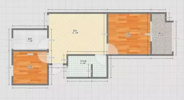
▼改造后房型圖

1.把原來的次臥做了榻榻米,并與廚房形成開放式空間,用推拉門分隔,平時可以作為休閑區域,有客人的時候,拉起推拉門就是一個小房間。
2.舍棄客廳,分隔出一個小房間
▼下面來看一下實景效果圖

進門的玄關,做了一個很大的鞋柜,冰箱放在了對門的位置,量房熱線:0551-63732980

廚房和邊上的榻榻米,這是一個好似開放的空間。可以坐在上面看電視,來個客人還可以當床。我們都是北方人,對這個類似于炕的東西我們用的還是很習慣的。





其實我們是有兩道折疊門可以拉上的。這樣,廚房和這個小廳都變成了獨立的空間了


裝修設計熱線:0551-63732980

衛生間,不大的空間,卻也放下了該放的東西。
主臥,我們把衣柜的空間往小房間推了,并且把陽臺包了進來,這樣看著是不是感覺不小啊。


最后,是這個隔出來的小房間。由于要放過道,所以里面的寬度實在是有點窄,只能放下床的寬度,到衣柜拿東西要在床上拿的,窗臺邊的書桌還沒有買



輕裝修,重裝飾,風格簡約是本次設計的設計理念,根據業主的個性需求喜好和習慣,等諸多元素來設計和量身定制,從而達到協調的,完美效果。
泓鑒裝飾家裝免費量房熱線:0551-63732980,選擇泓鑒,就是選擇放心!
|